Тверь
  Каталог
Ваш город:

Тверь?

Меню

Проект п. Караси кирпич Абрамцево

Белый Дом лидер Рязанского и Российского рынка проектирования и строительства домов. TOP10rus

Поделиться:

Реализация п. Караси кирпич Абрамцево

Особенности проекта

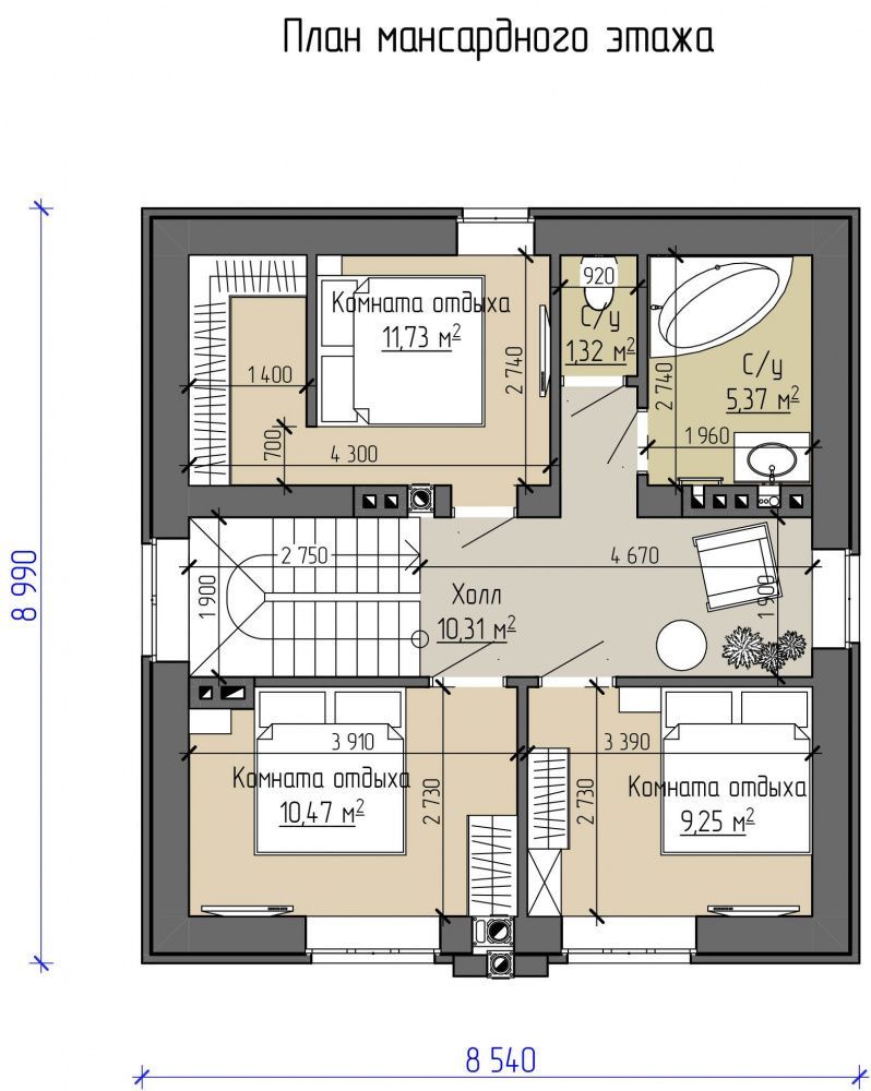
Объект проектирования - одноэтажный банный комплекс с мансардным этажом в плане прямоугольной формы, с размерами сторон по координационным осям 10230 мм и 11690 мм.
  • На первом этаже здания размещены: крыльцо, терраса, тамбур, техническое помещение, предбанник, душевая, парная, с/у, кухня-гостиная.
  • На мансардном этаже здания размещены: 3 комнаты отдыха, холл и 2 с/у.
  • Общая площадь помещений первого этажа составляет 47,63 м2. Общая площадь помещений мансардного этажа составляет 48,45 м2. Площадь террасы и крыльца составляет 24,86 м2.
Конструктивные решения
  • Под основной частью здания фундамент существующий.
  • Проектируемый фундамент здания - монолитная ж/б лента сечением 400/500 мм (в зависимости от места положения).
  • Глубина заложения проектируемой монолитной ж/б ленты - 1500 мм. Общее сечение фундамента составляет 1600 мм.
  • По фундаменту устраивают горизонтальную и вертикальную гидроизоляцию, которая включает в себя обработку мастикой и укладка рулонной гидроизоляции
  • Цоколь выполнять из керамического полнотелого кирпича марки не менее М150 (размерами 250х120х65мм) с последующей наружной отделкой из искусственного камня White Hills (Данвеган 500-10).
  • Наружные стены выполнены из керамических блоков 440х250х219 мм с последующим воздушным зазором 20 мм и с отделкой из керамического кирпича формата WDF Донские Зори "Абрамцево" и из гиперпрессованного кирпича Qbrick (рваный). Применение данных материалов и мест их расположения продиктованы архитектурными решениями здания.
  • Внутренние стены и перегородки из керамических блоков, а вентканалы - из керамического полнотелого кирпича марки не менее М150 (размерами 250х120х65мм).
  • Покрытие кровли - гибкая черепица Kerabit. 
    Менеджер проекта
    Агейкин Данила

    Заказать обратный звонок

    Материалы проекта

    Личный кабинет

    Заказать звонок эксперта

    Наш менеджер свяжется с Вами в ближайшее время